LOADING

228a Connaught Street Kitchener, Ontario N2C 1B3

None Other

$399,000

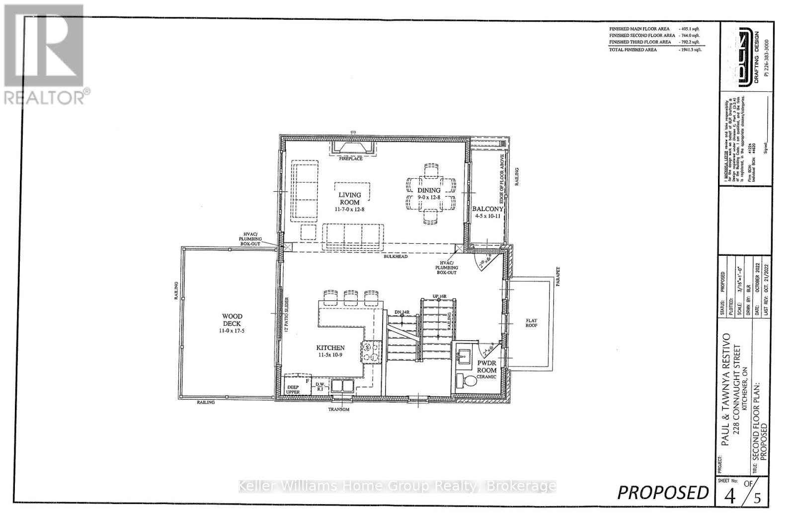
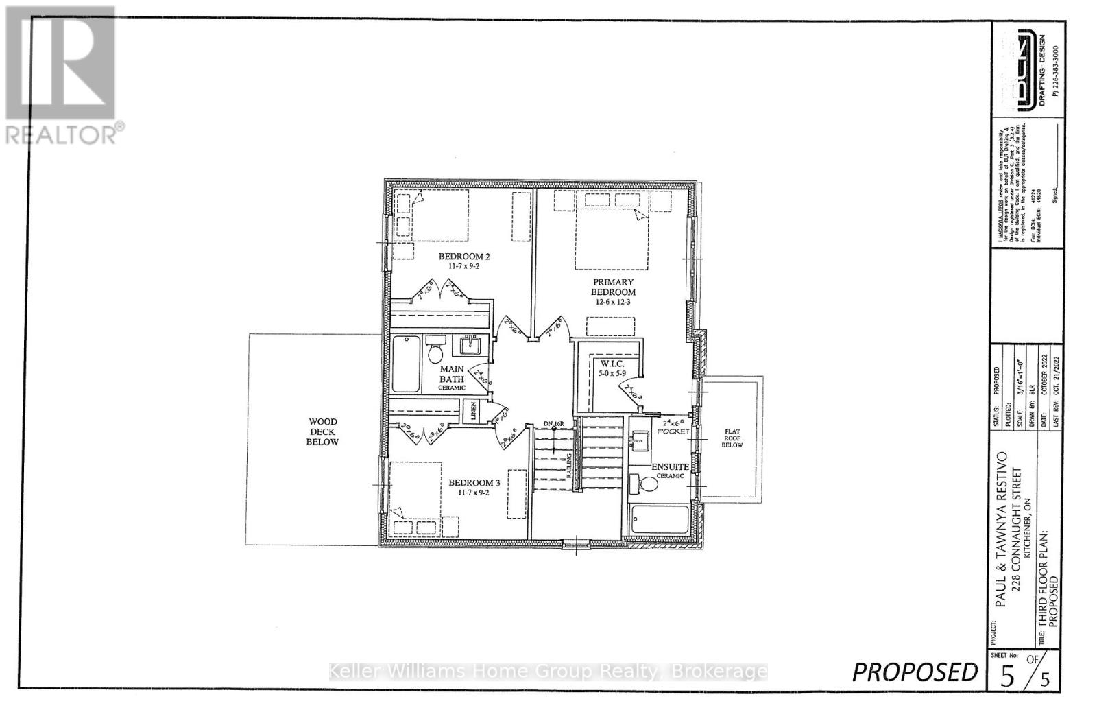
Prime Vacant lot in the Wilson Park area, close to Kingdales Community Centre, Wilson Ave Public School and Holy Trinity Church are all just a stone's throw away. This is a great opportunity to build your custom home in a nice mature neighbourhood. This vacant building lot offers the chance to build your new home in a mature, established neighbourhood. See plans for a 3 level, 3 bedroom, 3.5 bathroom contemporary style home that would be ideal on this lot or choose your own design and style to suit your needs. (id:63008)

Property Details

MLS® Number X12655760
Property Type Vacant Land
Neigbourhood Vanier
AmenitiesNearBy Golf Nearby, Schools, Ski Area

Building

CoolingType None
HeatingType Other

Land

Acreage No
LandAmenities Golf Nearby, Schools, Ski Area
SizeDepth 66 Ft
SizeFrontage 38 Ft
SizeIrregular 38 X 66 Ft
SizeTotalText 38 X 66 Ft|under 1/2 Acre
ZoningDescription R3

Utilities

Cable Available
Electricity Available
Sewer Available

https://www.realtor.ca/real-estate/29209578/228a-connaught-street-kitchener

Carl Wilkinson
Broker


Keller Williams Home Group Realty
135 St David Street South Unit 6
Fergus, Ontario N1M 2L4

Scott Couling
Salesperson


Keller Williams Home Group Realty
135 St David Street South Unit 6
Fergus, Ontario N1M 2L4

Eric Stupak
Salesperson


Keller Williams Home Group Realty
135 St David Street South Unit 6
Fergus, Ontario N1M 2L4

Garrett Duval
Salesperson


Keller Williams Home Group Realty
5 Edinburgh Road South Unit 1
Guelph, Ontario N1H 5N8

Compare listings

Compare